Marmolbravo
architects - madrid
+34 918214040
hola@marmolbravo.com
Calle Infante Alfonso de Borbón 12, 28224 Pozuelo de Alarcón, Madrid
Proyectos
vivienda
urbanismo
interior
art/diseño
más
workshop
Estudio
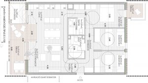
de peus a terra_panel02
Concurso reestringido
Promotor: EMVS
Estado: PROYECTO EN EJECUCIÓN
Marmolbravo ©